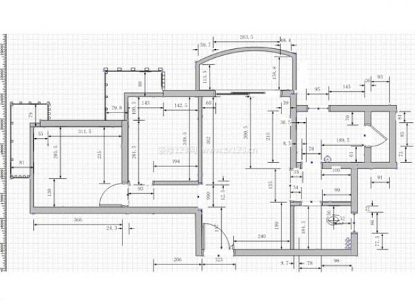
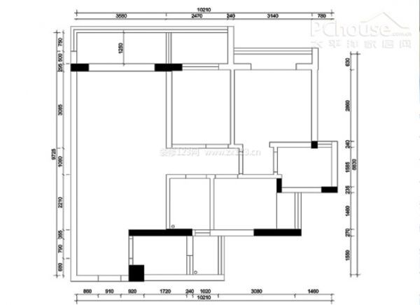
量房是裝修的第一步,只有對房間各個地方的尺寸都了如指掌,才能更好地進行接下來的裝修設計、制定預算方案等工作。明確量房相關知識,輕松解決裝修難題。

Part1:裝修漫無頭緒?從量房基本知識學起(房屋裝修之如何測量房屋面積)
量房是房屋裝修的第一步,這個環節雖然細小,但卻是非常必須和重要的。它是指設計師或者是業主自己對擬裝修的居室進行現場勘測,并進行綜合的考察的過程。
一、裝修量房的作用
1、了解房屋詳細尺寸數據

通過量房準確的了解房屋內各房間的長、寬、高以及門、窗、空調、暖氣等的位置,量房首先對裝修的報價會產生直接影響。
2、了解房屋格局利弊情況
通過現場量房,設計師會仔細的觀察房屋的位置和朝向。以及周圍的環境狀況、噪音是否過大、空氣質量如何、采光如何等,都會直接影響后期的設計。如果遇到一些房子格局或外部環境不好的情況下,就需要設計來彌補。

3、保證后期房屋裝修質量
只有量房比較精確,才能做出準確的設計,不至于后期施工時,因為尺寸不對而無法實現,需要進行設計更改或者項目更改。一些項目如上下水、暖氣、煤氣位置如果沒有測量或者測量不準確,就有可能導致后期購買的坐便器、水盆等因尺寸不對無法安裝而發生退貨、換貨的情況。
4、方便設計師與業主實地交流

量房時,設計師和業主一般都會到場,如果業主對房屋的設計有一定的想法,在現場測量的時候,就可以和設計師溝通看這些想法是否可行,交流起來比較有效果。此外,業主如果需要提前訂購主材,也需要現場和設計師進行溝通后再做決定。
二、量房的收費情況
一般情況都是請裝修公司設計師來量房,關于量房的收費,不同的裝修公司有不同的規定。如果收費的話一般為一次100元左右,如果量好房,業主選擇這家公司設計、施工,則這100元自動轉化為定金的形式,如果量好房就結束了,則這100元就作為設計師量房的報酬,不予退還。
三、量房前的準備事項

量房前記得攜帶好房屋圖紙:在量房前記得攜帶房屋建筑水電圖以及建筑結構圖、戶型圖等。
了解所在物業對房屋裝修的規定:量房前還一定要了解房屋所在的小區物業,對房屋裝修的具體規定,例如在水電改造方面的具體要求,房屋外立面可否拆改,陽臺窗能否封閉等等,以避免不必要的麻煩。